The Historic District Review Board will hold a Special Meeting on June 8th to discuss an apartment project planned for 301 Mason Ave.
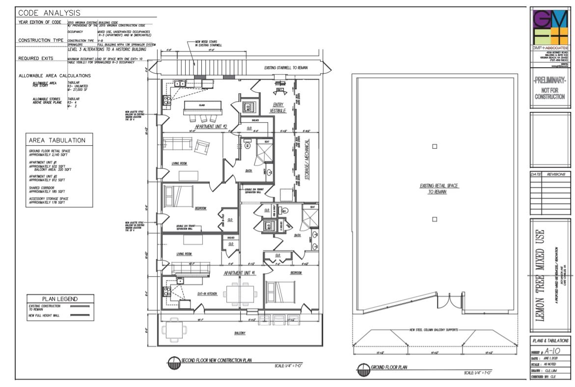
The proposed project includes remodeling of the existing second floor space above Lemon Tree Gallery at 301 Mason Ave. to convert existing, non-occupied commercial space into two (2) apartment units.
One unit is planned to be 932 sf of rentable square feet with a 320 square foot balcony. The second unit is planned to be 912 sf of rentable square feet.
The new balcony will be constructed in the area currently covered by an awning and currently enclosed at the street level by an existing metal railing. The existing stairwell which provides access to the second floor, and which serves
two properties and is within an easement, will be left in place with new stairs being constructed inside.


Scotiagirl says GO FOR IT! We need the taxes, but please don’t offer street parking for these new units 😲
When will the town address the need for low income housing? The Town Council and Planning Commission has said this is a number one priority for years. Is this just lip service? Businesses in CC can’t find workers even for $15/hr. We need to bring in these illegals that the Biden Administration has let into this country and put them to work. It is not fair that all the Red States have bus loads of illegals brought into their states in the middle of the night without their consent. We need our fair share of illegals. Citizens of Cape Charles should demand it.
You’re in for a real good fight then with New York’s Democratic Socialist governor Young Andy Cuomo because he has a prior claim on them.
He needs them to be good Democrats that he can re-populate upstate New York with after he managed to kill off a large percentage of the population who didn’t vote Democrat with COVID by sending infected persons from New York City to all points on the compass inside the state like Smallpox Blankets.
If you haven’t noticed it the complete opposite. Lol cape Charles doesn’t want no low income houses. They have some of those on seaside. Its called bay view.